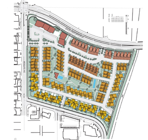
This former shopping center in the heart of the city of Palm Springs had been demolished due to the over supply of nearby retail space and rising land values.


To rezone the site for a mix of residential units, including single family detached homes, attached townhomes and live-work units, as well as retail uses.


The property has been optioned and entitlements are underway for some 103 homes.

 

 

 

 

 

Development
Palm Mesquite
Palm Springs, CA

Architect
OJMR Architects